Dove i progetti trovano casa
Toggle navigation
Home
Immobili
Vendite
Affitti
Immobili commerciali
Terreni
Chi siamo
Servizi
Contatti
Compatta pannello di ricerca immobili
Espandi pannello di ricerca immobili
Tipologia
Vendite
Affitti
Immobili commerciali
Terreni
Categoria
Qualsiasi
1 locale
2 locali
3 locali
4 o più locali
Appartamento
Attico
Azienda agricola
Baita
Cantina
Capannone
Casa singola
Castello
Duplex
Garage
Hotel
Laboratorio
Loft
Magazzino
Maisonette
Mansarda
Negozio
Porzione di casa
Porzione di villa
Posto auto
Posto barca
Rustico / Casale
Stabile / Palazzo
Tenuta
Terreno
Terreno agricolo
Terreno edificabile
Ufficio
Villa
Villa bifamiliare
Villetta a schiera
Città
Tutte
Corridonia (MC)
Macerata (MC)
Montappone (FM)
Treia (MC)
Urbisaglia (MC)
Zona
Tutte
Prezzo (da - a)
Mq (da - a)
Codice
Ordinamento
Inserimento
Codice
Categoria
Città
Zona
Prezzo
Metri quadri
Cerca
Appartamento Urbisaglia
80.000 €
110 m
2
3 Camere
1 Bagni
Previous
Next
Foto
Planimetrie
Codice
V000133
Città
Urbisaglia
Categoria
Appartamento
Locali
5
Mq Box
15
Posti auto
1
Mq Balcone
9
Piano
2
Classe energetica
E
Stato Immobile
Buono
Grado
Medio
Panorama
Vista Monumento
Lati Liberi
3
Giardino
No
Arredi
Solo Cucina
Tipo Soggiorno
Salone
Tipo Cucina
Abitabile
Riscaldamento
Autonomo
Tipo Riscaldam.
Caldaia
Tipo Impianto
Radiatori
Fonte Energetica
Metano
Acqua Calda
Autonoma
Infissi
PVC Doppio Vetro
Serramenti
Buono
Persiana
Tapparella PVC
Pavim. Giorno
Graniglia
Pavim. Notte
Graniglia
Pavim. Cucina
Graniglia
Pavim. Bagno
Ceramica
Accesso Disabili
No
Accesso interno disabili
Non accessibile
Isolamento
Non presente
Isolamento termico
Nessuno
Isolamento acustico
Nessuno
Accessori
Doppi Vetri
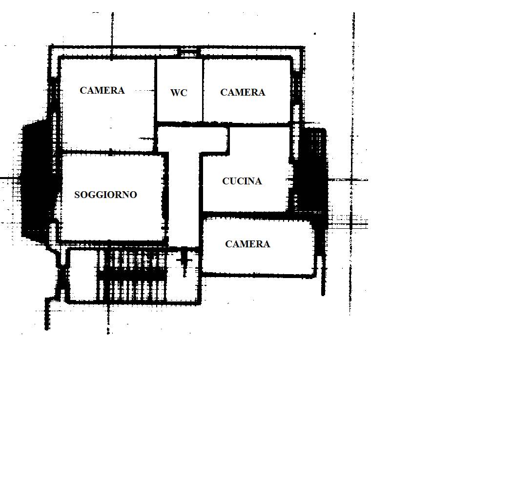
Urbisaglia – A due passi dal centro con vista sulla Rocca
In posizione strategica e panoramica, con splendida vista sulla suggestiva Rocca di Urbisaglia, proponiamo in vendita appartamento posto al secondo piano di una palazzina tranquilla.
L’immobile si compone di:
Cucina abitabile
Luminoso soggiorno
3 camere da letto (2 doppie e 1 singola)
Bagno
Completa la proprietà un garage di 15 mq al piano terra e un posto auto esclusivo.
La soluzione necessita di piccoli lavori di manutenzione, ma risulta abitabile da subito — ideale sia come prima casa per famiglie sia come investimento.
Contatti anche tramite WhatsApp al 345 7007520 – Gioia
Condividi
Tweet
Mantieni impostazioni di default X
Uso dei cookies
Questo sito fa uso di cookies. I nostri cookies (propri) e quelli dei nostri Partners (cookies di terzi) servono per poterti offrire un'esperienza unica con noi. Per questo motivo, insieme ai nostri partners, raccogliamo e processiamo informazioni non sensibili (come l'identificatore del tuo dispositivo o le pagine che visiti).
In qualsiasi momento potrai eliminare, modificare o verificare le informazioni che condividi in
Cookie preference
o nella nostra
Cookie Policy
e
Privacy Policy
.
Necessari
Funzionali
Profilazione
Analitici
Accetta tutti
Rifiuta tutti
Accetta selezionati
Cookie preference